514 235-3331
Dessin Design Architecture
Plans de maison et de rénovation
Accueil
Contact
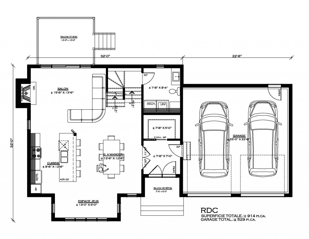
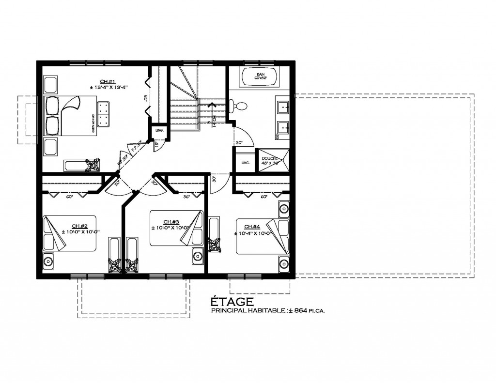
Le Familia
Partager
Plan de maison: Le Familia
Article Précédent
Le Miroir
Plans de maison
Article Suivant
Le Grando
Plans de maison