514 235-3331

Le Familia-RDC

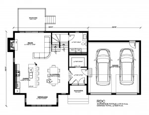
Le Familia-RDC

Plan de maison résidentielle Le Familia
Rez-de-chaussée
Superficie totale 914 pi.ca.
Garage totale 529 pi.ca.