514 235-3331
Dessin Design Architecture
Plans de maison et de rénovation
Accueil
Contact
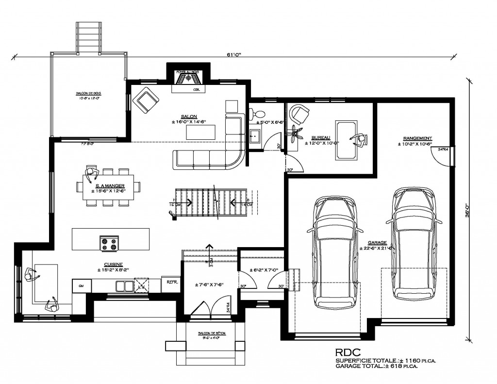
Le Grando
Partager
Plan de maison: Le Grando
Article Précédent
Le Familia
Plans de maison
Article Suivant
Le Jonat
Plans de maison