514 235-3331
Dessin Design Architecture
Plans de maison et de rénovation
Accueil
Contact
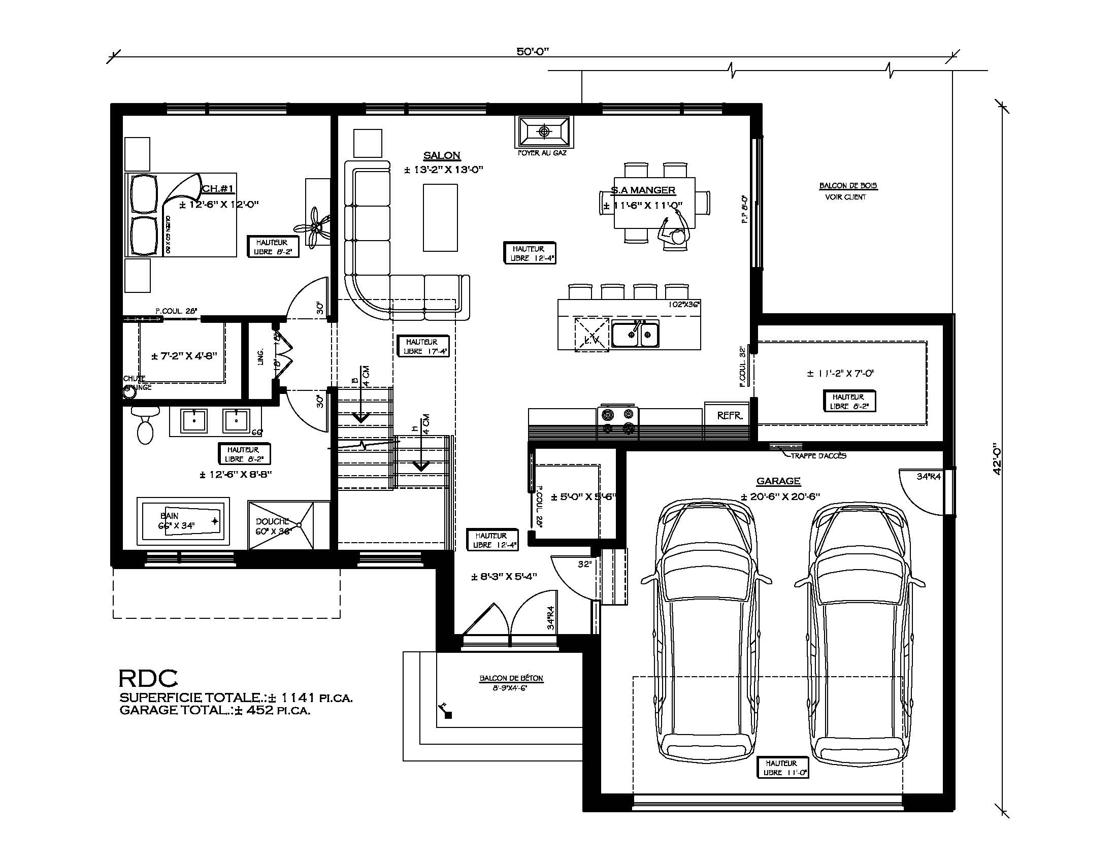
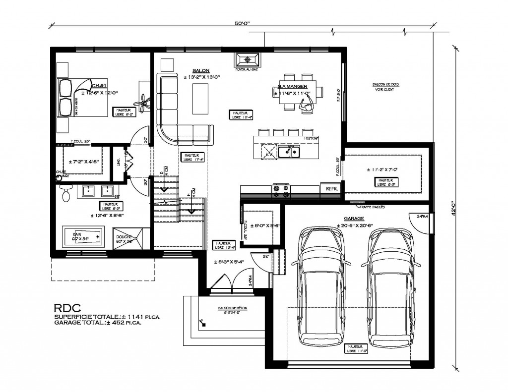
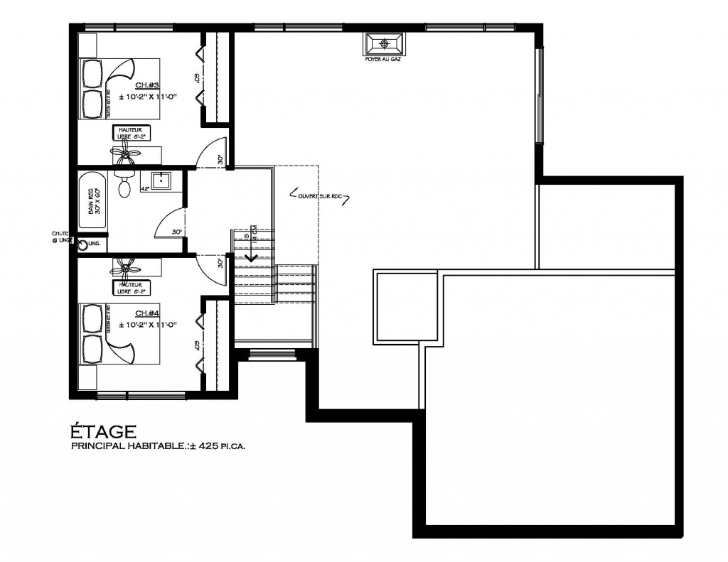
Le Jonat
Partager
Plan de maison: Le Jonat
Article Précédent
Le Grando
Plans de maison
Article Suivant
Le Jougue
Plans de maison