514 235-3331

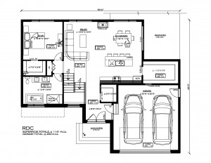
Le Jonat-RDC

Rez-de-chaussée Le Jonat

Plan de maison résidentielle Le Jonat
Rez-de-chaussée superficie totale 1141 pi.ca.
Garage total 425 pi.ca.