514 235-3331

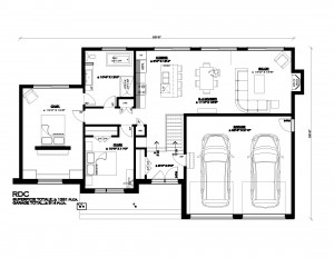
Le Mariolie-RDC

Le Mariolie-RDC

Plan de maison résidentielle L’Intemporel
Rez-de-chaussée
Superficie totale 1281 pi.ca.
Garage total 514 pi.ca.