514 235-3331
Dessin Design Architecture
Plans de maison et de rénovation
Accueil
Contact
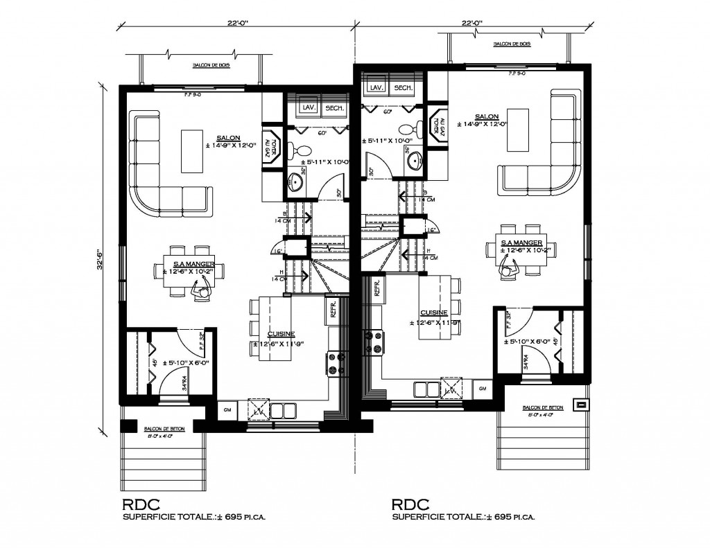
Le Miroir
Partager
Plan de maison: Le Miroir
Article Précédent
Le Mariolie
Plans de maison
Article Suivant
Le Familia
Plans de maison