514 235-3331
Dessin Design Architecture
Plans de maison et de rénovation
Accueil
Contact
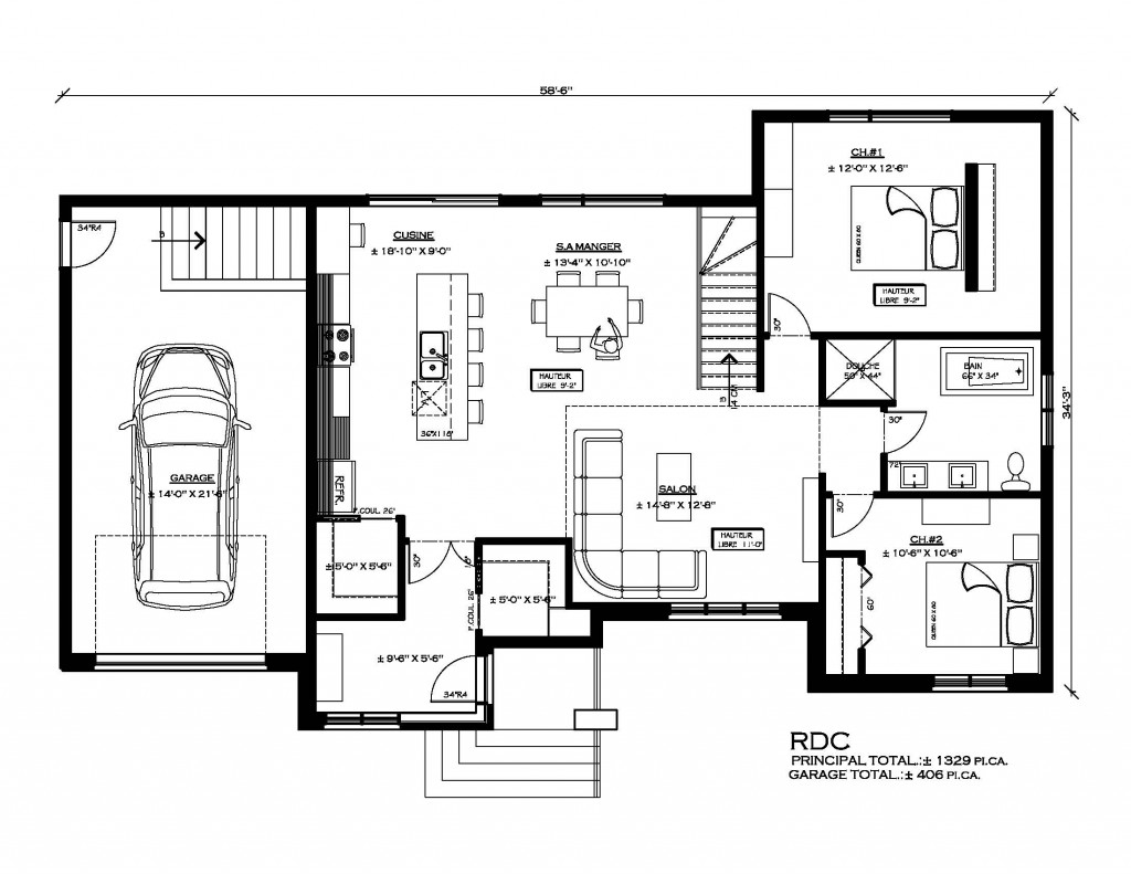
Le Simpliste
Partager
Plan de maison: Le Simpliste
Article Précédent
Le Jougue
Plans de maison
Article Suivant
L’Intemporel
Plans de maison