514 235-3331

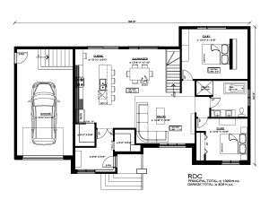
Le Simpliste -RDC

Rez-de-Chaussée - Le Simpliste

Plan de maison résidentielle
Le Simpliste, Rez-de-Chaussée principale totale 1329 pi.ca.
Garage totale 406 pi.ca.