514 235-3331
Dessin Design Architecture
Plans de maison et de rénovation
Accueil
Contact
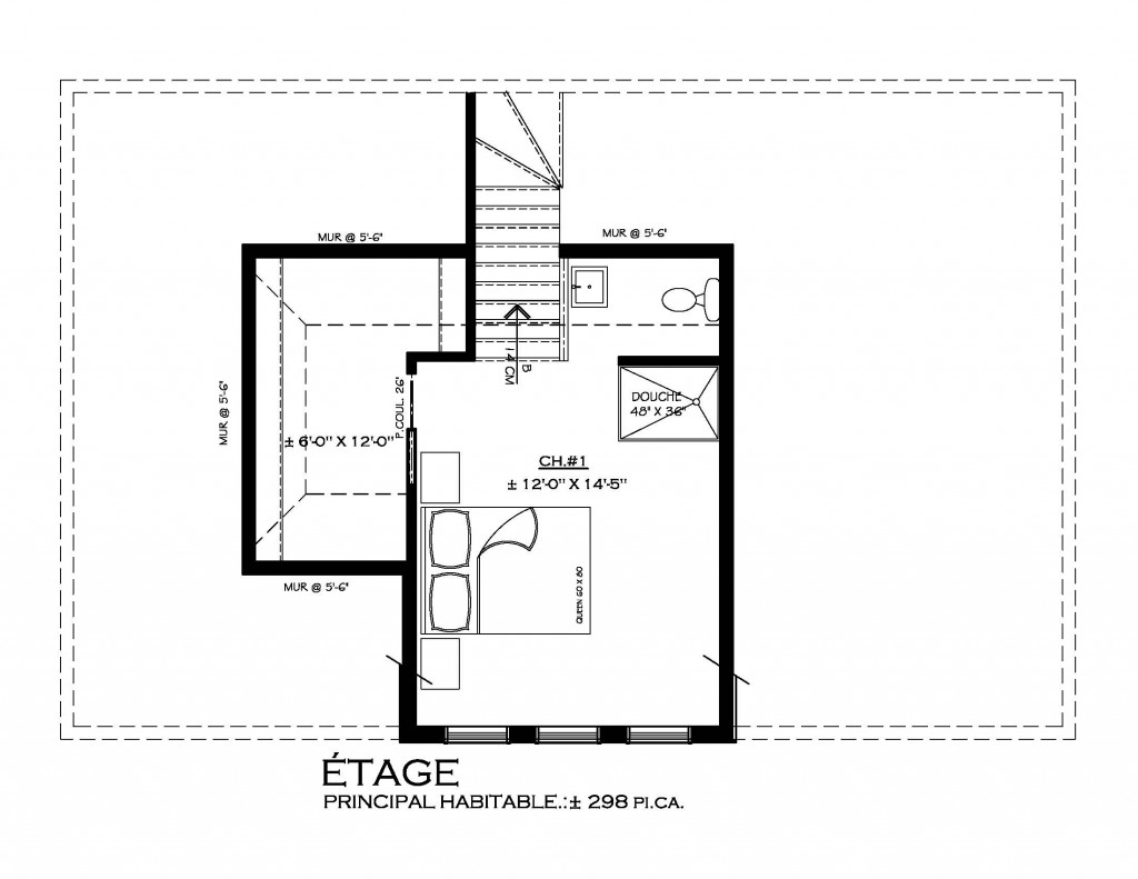
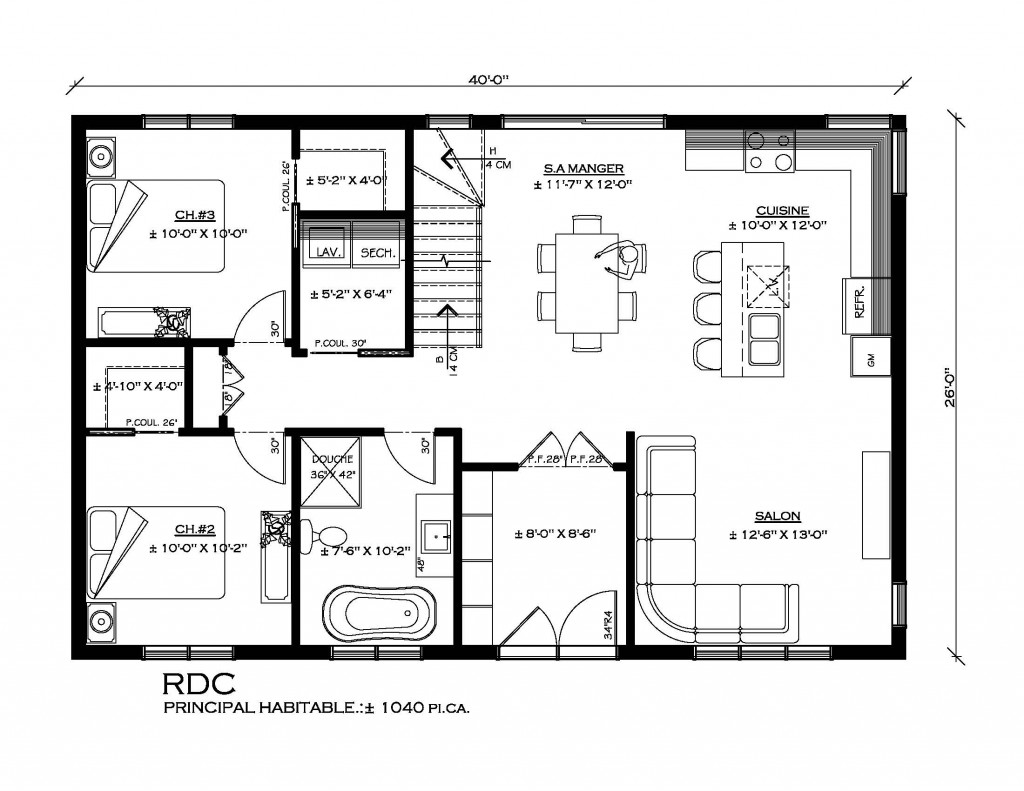
L’Intemporel
Partager
Plan de maison: L’Intemporel
Article Précédent
Le Simpliste
Plans de maison