514 235-3331
Dessin Design Architecture
Plans de maison et de rénovation
Accueil
Contact
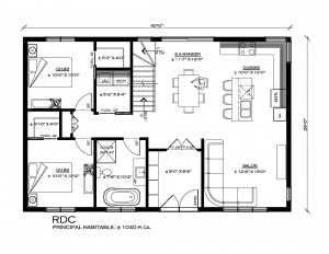
L’intemporel-RDC
Partager
Plan de maison résidentielle L’Intemporel
Rez-de-chaussée
Principal habitable 1040 pi.ca.